Beschreibung
Diese Doppelhaushälfte mit viel Potenzial liegt auf einem rund 550m² großen Grundstück mitten im Herzen Verdens. Das Objekt wurde in den vergangenen Jahren komplett entkernt und bereits teilweise wieder aufgebaut.
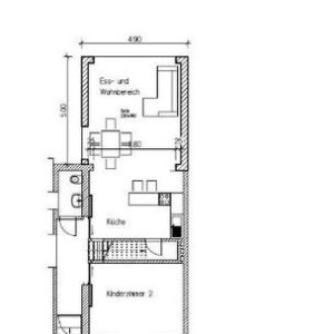
Das Erdgeschoss befindet sich noch im Rohbauzustand. Über den Eingangsbereich haben Sie sowohl Zugang in das Wohnzimmer wie auch zur Küche. Von der Küche aus besteht die Möglichkeit eine Treppe in den tollen Garten zu schaffen. Ein Gäste-WC rundet das Gesamtbild dieser Ebene ab.
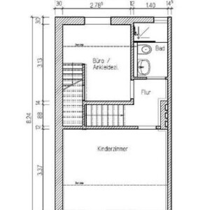
Im Obergeschoss sind die Arbeiten bereits deutlich weiter fortgeschritten. Die Trockenbauarbeiten wurden bereits ausgeführt. Türen wurden ebenfalls bereits eingebaut. Diese Ebene besteht aus einem Kinder-/Gästezimmer sowie dem Bad des Hauses. Ein weiteres Zimmer, das als Büro oder Ankleidezimmer nutzbar ist, ermöglicht den Weg in das voll ausgebaute Dachgeschoss. Das Dachgeschoss eignet sich perfekt als Schlafzimmer.
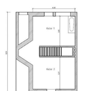
Das Objekt ist voll unterkellert.
Um die Wohnfläche weiter zu vergrößern, gibt es bereits Planungen für einen Anbau. Mögliche Aufteilungen finden Sie in diesem Exposé.
In den vergangenen Jahren wurde beispielsweise das Dach vollständig erneuert und mit einer zeitgemäßen Dämmung versehen. Auch die Fenster des Objektes wurden größtenteils bereits ausgetauscht, genauso wie sämtliche Ver- und Entsorgungsleitungen des Hauses. Aufgrund des Zustandes haben Sie noch viel Gestaltungsspielraum und können das Haus Ihren individuellen Wünschen anpassen.
Objektlage
Die Doppelhaushälfte liegt in einem reinen Wohngebiet im Herzen Verdens. Bahnhof, Fußgängerzone und Einkaufsmöglichkeiten für den täglichen Bedarf sind fußläufig zu erreichen. Kindergarten, Grundschule und weiterführende Schulen sind ebenfalls in unmittelbarer Nähe.
Ausstattung
Eigenschaften:
- Bad mit Fenster und Dusche
- Garten
- Gäste-WC
- Kunststofffenster
- Voll unterkellert












